Таунхаус в сосновом лесу

код: 540400
148.00 м2
4 спальни
3 сан.узла
Стоимость
26 000 000 RUB
Карта всех объектов
Расположение

Крым Респ, Ялта городской округ, Горное п , -

Описание

Продаётся великолепный таунхаус в царской Ливадии! Этот двухэтажный особняк с дизайнерским ремонтом и панорамными окнами подарит вам незабываемые виды на море и природу. Чистый воздух, пение птиц и умиротворение — всё это ждёт вас в заповедной зоне, окружённой сосновым бором.
На уютной веранде вы сможете наслаждаться утренним кофе или вечерним бокалом вина, наблюдая за лисами, кабанами, косулями и совами. Общая площадь таунхауса составляет 148 м², а терраса — 32 м². Кухня оборудована бытовой техникой Bosch, а стены отделаны французской штукатуркой. Унитазы оснащены японскими биде с датчиками движения, нагрева, подсветки и массажа.
Все коммуникации в таунхаусе центральные: газ, электричество и канализация. Отопление обеспечивается автономным двухконтурным котлом итальянской фирмы BAXI, что гарантирует комфорт и уют в вашем доме. В посёлке Горный есть всё необходимое для комфортной жизни: магазины, детские площадки, больницы, прогулочные зоны и остановки общественного транспорта.

Размещение

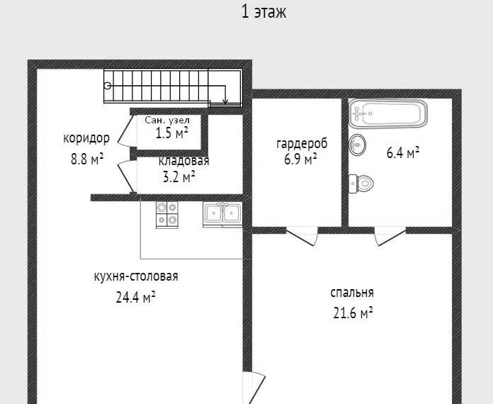
Первый этаж:
Кухня-гостиная
Спальня
Гардероб
Два санузла
Кладовая.
Второй этаж:
Три спальни
Санузел
Холл.

Инфраструктура

  • Автоматические ролеты
  • Электронный замок
  • Охранная Сигнализация
  • Система видеонаблюдения
  • Конференцсвязь м/у этажами

Расстояние

До моря ≈ 8 км, 15 минут езды на автомобиле
До набережной Ялты ≈ 6.5 км, 13 минут езды на автомобиле

Поделиться
Оставить отзыв:

Использование сайта означает согласие с Публичной офертой и Политикой конфиденциальности.

Заказать звонок: