Дом с бассейном в закрытом комплексе Ялта

код: 540471
Расположение

Крым Респ, Ялта городской округ, Ялта г, Средне-Дарсановская ул

Описание

Предлагаем вашему вниманию 3-х этажный индивидуальный жилой дом с земельным участком, гаражом и собственным бассейном, расположенный в жилом комплексе, состоящим из 6 домов (2 вида планировок), в уникальном районе курортного города Ялта по улице Среднедарсановская. Здесь открывается прекраснейший вид не только на море, но и на горы! В шаговой доступности гипермаркет, до набережной 5 мин езды. Отличное место для вашего проживания и отдыха.

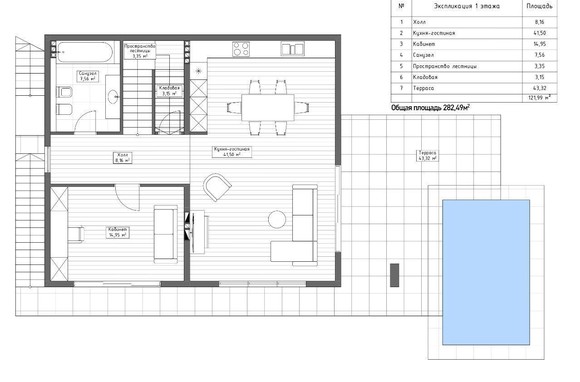
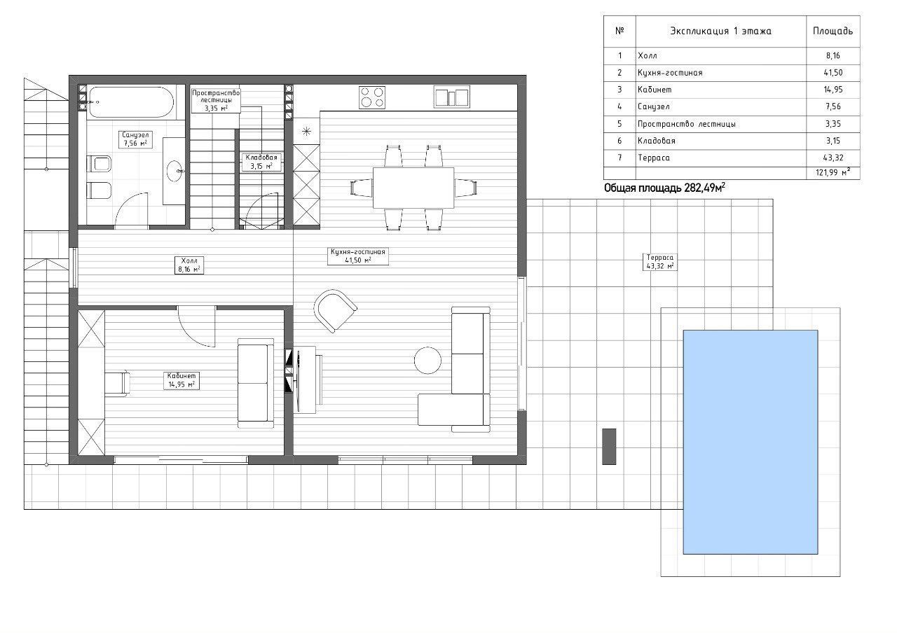
Дом общей площадью 282,49 кв.м. Выполнен в современном стиле.
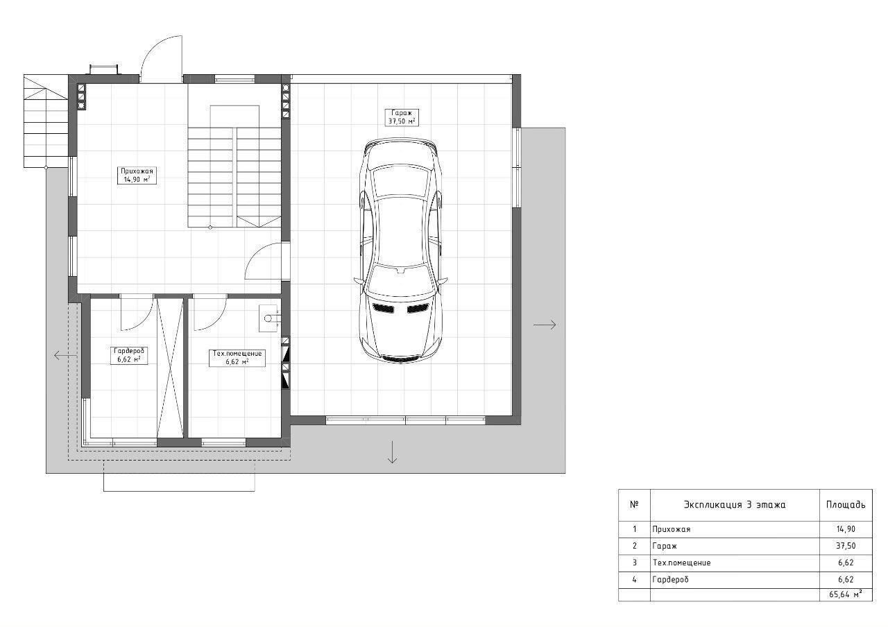
1 этаж: гараж — 37,50 кв. М, прихожая — 14,90 кв. М, гардероб — 6,62 кв. М, техническое помещение — 6,62 кв. М.
2 этаж: кухня-гостиная — 41,50 кв. М, кабинет — 14,95 кв. М, холл- 8,16 кв. М, санузел — 7,56 кв. М, кладовая — 3,15, пространство лестницы — 3,35 кв. М и Терраса — 43,32 кв. М.
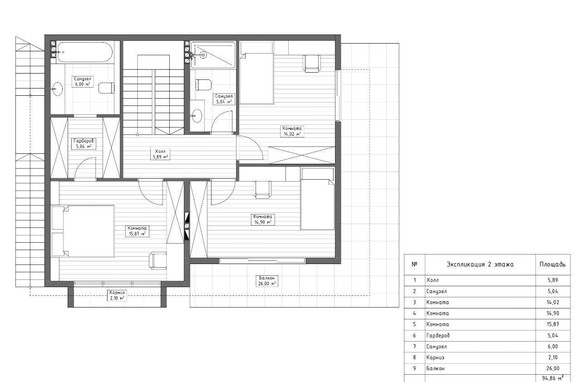
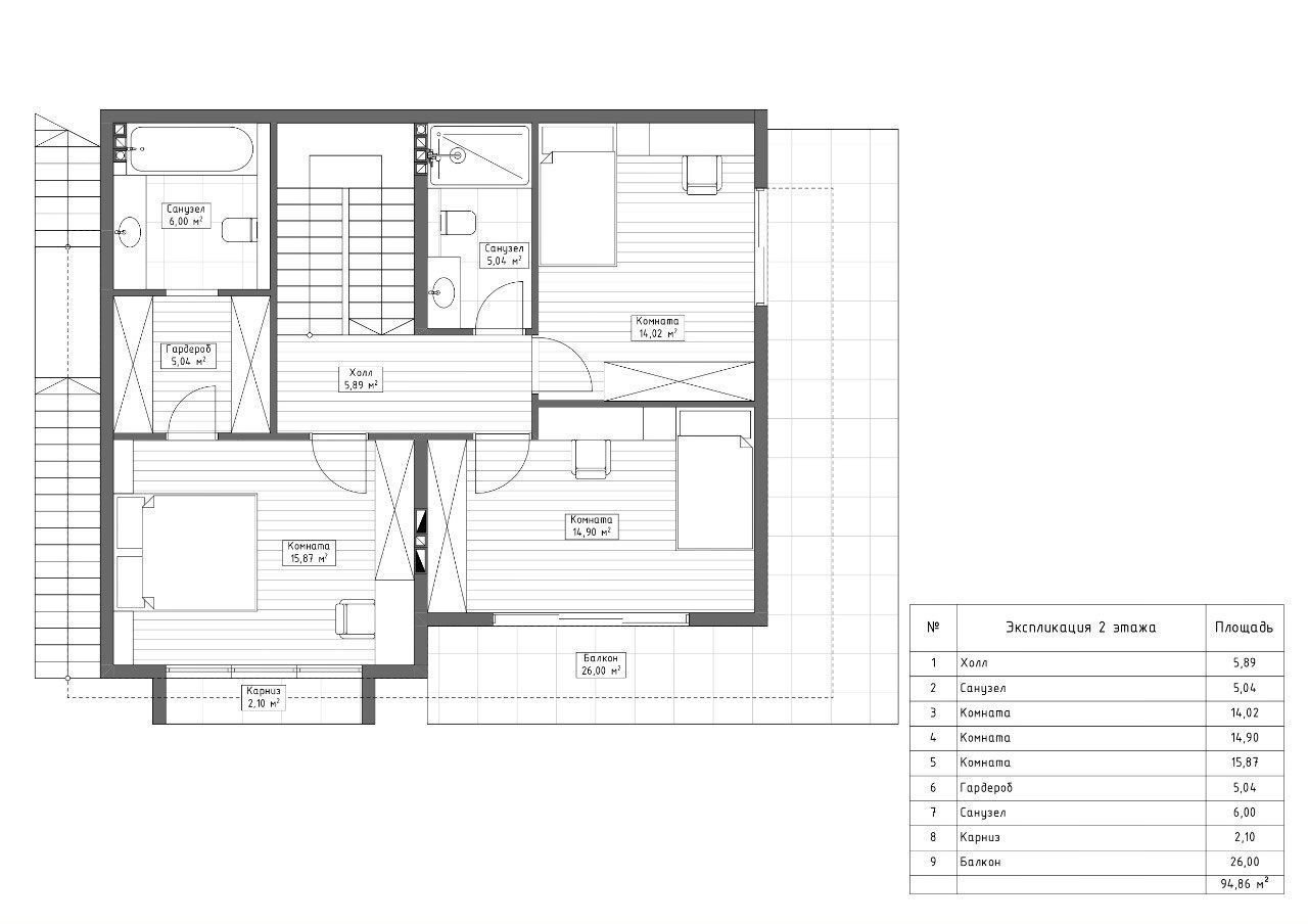
3 этаж: 3 комнаты (14,02/14,9/15,87 кв. М), 2 санузла (6,00/5,04 кв. М), балкон (26,00 кв. М), гардероб — 5,04 кв. М, холл — 5,89 кв. М и карниз — 2,10 кв. М.
Участок Ижс площадью 4 сотки в собственности. Огороженная территория.
Развитая инфраструктура.
Хорошая транспортная развязка, выезд на южнобережного шоссе.
Подходит под все виды расчетов.

Поделиться
Оставить отзыв:

Использование сайта означает согласие с Публичной офертой и Политикой конфиденциальности.

Чат в Whatsapp
Заказать звонок: